案例介绍
山东省 - 聊城市 - 东昌府区
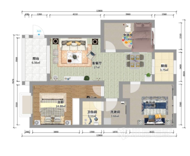
水晶城
户型图








免费申请设计
设计师上门服务全程免费,禁止以任何形式收取费用。