德国工业4.0智造

  • 健康环保
  • 免费服务
  • 三年质保
  • 本地体验
首页 > 案例中心 > 欧式 > 蓝海阳光

蓝海阳光 3415

150㎡#三室两厅两卫#欧式

案例介绍
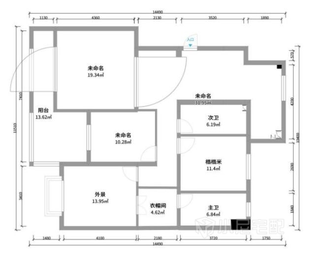
内蒙古自治区 - 呼和浩特市 - 新城区 东方科苑


                       

户型图


                               

                               

                               

                               

                               

                               

                               

                               
内蒙古自治区-呼和浩特市
设计经验2 作品2
  • 现代
  • 中式
  • 欧式
  • 硬装设计

免费申请设计

设计师上门服务全程免费,禁止以任何形式收取费用。

请输入验证码

验证码输入错误