德国工业4.0智造

  • 健康环保
  • 免费服务
  • 三年质保
  • 本地体验
首页 > 案例中心 > 欧式 > 古城堡

古城堡 2804

600㎡#别墅#欧式

案例介绍
北京市 - 平谷区 平谷马坊文化大院


                       

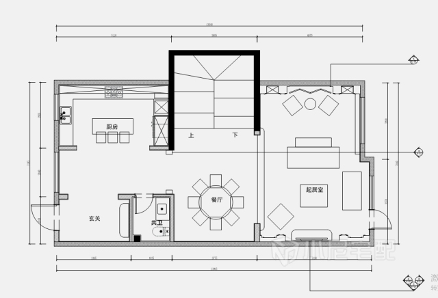
户型图


                               

                               

                               

                               

                               

                               

                               

                               

                               

                               
北京市-通州区
设计经验7 作品10
  • 现代
  • 欧式
  • 简约
  • 软装配饰设计

免费申请设计

设计师上门服务全程免费,禁止以任何形式收取费用。

请输入验证码

验证码输入错误