案例介绍
河北省 - 廊坊市 - 三河市
华泰
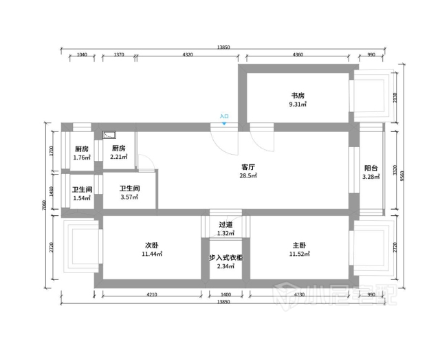
户型图

进门正对衣帽间隐形门,隐形门采用装饰画装饰,艺术感很强

客厅简单白色调为主,干净自然

餐厅一样为白色调为主,与客厅相呼应

卫生间采用暖色墙砖,显得温暖

厨房空间小,显得狭小,充分利用阳台空间

书房设置双人位,休闲娱乐一体

主卧室全屋定制榻榻米,选用暖色调为主

次卧室全屋定制榻榻米,选用暖色调为主
免费申请设计
设计师上门服务全程免费,禁止以任何形式收取费用。