案例介绍
江苏省 - 苏州市 - 吴中区
保利悦都
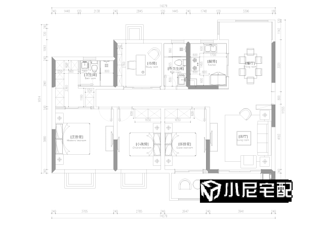
户型图

客厅一

客厅二

餐厅

主卧一

主卧二

次卧一

次卧二

小孩房一

小孩房二

书房
免费申请设计
设计师上门服务全程免费,禁止以任何形式收取费用。