案例介绍
内蒙古自治区 - 乌兰察布市 - 集宁区
警院小区
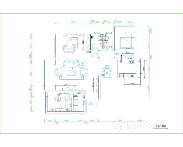
户型图

门厅

客厅

客厅

餐厅

主卧

次卧

卫生间

厨房
免费申请设计
设计师上门服务全程免费,禁止以任何形式收取费用。