德国工业4.0智造

  • 健康环保
  • 免费服务
  • 三年质保
  • 本地体验
首页 > 案例中心 > 欧式 > 欧典

欧典 2617

130㎡#三室两厅两卫#欧式

案例介绍
河北省 - 石家庄市 - 鹿泉市 建和园

虽然房子空间不是很大但是女主人很喜欢奢华的感觉,客餐厅的设计满足了女主人的愿望,

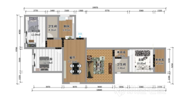
户型图

客厅空间
客厅空间
餐厅空间
走廊
女儿房
儿子房
主卧空间
河北省-石家庄市
设计经验5 作品6
  • 现代
  • 软装配饰设计
  • 产品陪购

免费申请设计

设计师上门服务全程免费,禁止以任何形式收取费用。

请输入验证码

验证码输入错误