德国工业4.0智造

  • 健康环保
  • 免费服务
  • 三年质保
  • 本地体验
首页 > 案例中心 > 混搭 > 森林怡人

森林怡人 2708

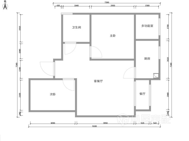
59.18㎡#两室一厅一卫#混搭

案例介绍
河北省 - 廊坊市 - 三河市 黄金花园

在现代生活节奏日益加快的今天,人们周而复始的穿梭在高耸入云的钢铁森林之中。针对这一情况此方案旨在唤醒人们暗藏在记忆中的大自然的景象,黄绿配色为主色,在风格上融入了日式、现代和简欧风格的些许特色。使得每一个空间上都有独特的亮点。装修价格:5.5万

户型图

浅绿色和亮黄的搭配象征着了阳光和植物的关系。这种颜色搭配能够带来很好的视觉感受。
在有限的室内空间中利用高度来增加持物空间,这种设计还能很好的丰富整个空间侧层次感。
将阳台改造成餐厅,有效的利用了阳台的凹槽处空间,在保证了家庭成员基本的使用空间后还满足了业主对于酒柜储物柜的需求。
卧房设计相比客餐厅色调偏冷一些,这种风格能够帮助主户更好的休息。
主卧的阳台设置了电脑桌和书柜,U型的书桌还可以多人同时使用。
次卧做成榻榻米房间,不仅提供了书桌还能够当做仓库使用。大容量的储物空间为日常生活提供了更多的收纳选择。
融入了一丝日式风格的装修设计给人一种一屋一世界的清新感受。
卫生间门上加装磨砂玻璃的设计能够避免了一些隐私的暴露
摒弃了冷色调马赛克风格铺装设计,选用了浅黄色大理石铺装的设计让人耳目一新。
利用上下柜直接的空隙尽可能的增加储物空间,这种设计能够更好的增加使用面积和降低清洁难度。
从左至右依次是水盆、操作台和灶台,更方便的按顺序料理食材。这样能够防止在厨房的频繁走动。
河北省-廊坊市
设计经验1 作品5
  • 现代
  • 中式
  • 日式
  • 硬装设计
  • 软装配饰设计

免费申请设计

设计师上门服务全程免费,禁止以任何形式收取费用。

请输入验证码

验证码输入错误