案例介绍
内蒙古自治区 - 乌兰察布市 - 集宁区
滨河小区
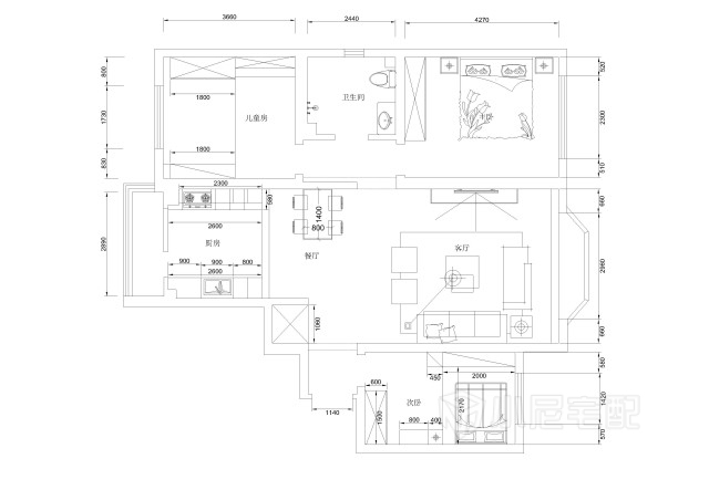
户型图










免费申请设计
设计师上门服务全程免费,禁止以任何形式收取费用。