案例介绍
                             
                               内蒙古自治区 - 赤峰市 - 阿鲁科尔沁旗
                                                              峰景新城
                                                            
                           
                           时尚简洁,空间以实用为主,美观为辅,开阔明朗,体现高品质的家居环境即可。 案例说明:简约不等于简单,它是设计师深思熟虑后经过创新得出的设计和思路的延展,不是简单的“堆砌”和平淡的“摆放”,在本案设计中设计师把原有的厨房和客厅相融合使客厅整体空间变得更大使用起来更舒适。在家具配置上,白亮光系列家具,独特的光泽使家具倍感时尚,具有舒适与美观并存的享受。在配饰上,延续了黑白灰的主色调,以简洁的造型、完美的细节,营造出时尚前卫的感觉。
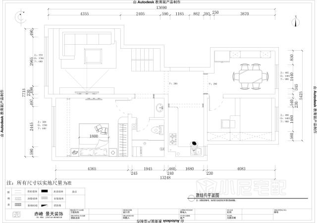
户型图
                                   
                               
 
                                                                      
                                                                      
                                                                      
                                                                      
                                                                      
                                                                      
                                                                      
                                                                      
                                                                      
                                                                     免费申请设计
设计师上门服务全程免费,禁止以任何形式收取费用。
 
                         
                         
                         
                         
                         
                             
                                   