案例介绍
山东省 - 聊城市 - 东昌府区
孟达国际
记忆中的温暖、、、、、、、、、、、、、、、
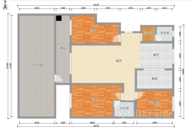
户型图








免费申请设计
设计师上门服务全程免费,禁止以任何形式收取费用。