德国工业4.0智造

  • 健康环保
  • 免费服务
  • 三年质保
  • 本地体验
首页 > 案例中心 > 现代 > 安纳湖现代风格

安纳湖现代风格 3528

92㎡#两室一厅一卫#现代

案例介绍
北京市 - 顺义区 安纳湖

简洁的现代风格和业主直率的性格非常吻合,没有繁琐的装饰,没有复杂的造型,简约而大气,经久耐看,实用价值高。

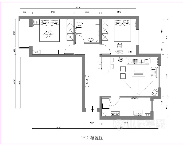
户型图

客厅整体采用浅色,弥补客厅朝北采光上的不足。简洁明朗的硬装搭配小尼丹麦暖阳系列的电视柜,整体更加大气、实用。
电视背景墙,仿大理石瓷砖,黑镜,搭配白色线条,简约不简单,现代感十足。
餐厅,餐边柜不仅增加了储物空间,搭配上装饰画,让整体更加丰富。
客厅、餐厅整体。
主卧,小尼维度系列床,暖色软装,让整间卧室更加温馨。
主卧衣柜,充分满足储物空间。
主卧电视柜、梳妆台,增添主卧整体功能性。
次卧为儿童房,充满公主气息的淡粉色。
儿童房衣柜。
书柜、字台给孩子满满的学习气氛。
卫生间,干净的墙砖搭配防滑地砖,壁挂的洗手台让整体更加干净。
洗衣机和马桶上方增加储物柜,满足卫生间的储物空间。
整体厨房,从洗涤区-加工区-烹饪区,完全符合正常的操作流程。
北京市-顺义区
设计经验4 作品12
  • 现代
  • 简约
  • 硬装设计
  • 软装配饰设计

免费申请设计

设计师上门服务全程免费,禁止以任何形式收取费用。

请输入验证码

验证码输入错误