德国工业4.0智造

  • 健康环保
  • 免费服务
  • 三年质保
  • 本地体验
首页 > 案例中心 > 混搭 > 素妍丹华

素妍丹华 5598

134㎡#三室两厅两卫#混搭

案例介绍
山东省 - 日照市 - 市辖区 裕生华庭

设计师认为完美的家居其实并不取决于用拆的昂贵与否,反而和一些规范性细节息息相关。

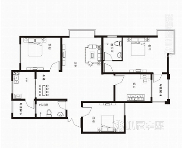
户型图

在白色与黑色间利用米色和棕色来进行色彩的递增,既时尚又整齐。
颜色和纹理上互相对比衬托,打破了空间的沉闷。
在墙面拼贴一幅与空间整体气氛相依的贴画,点明空间主题。
几分精致的艺术气息,提高了生活的精神享受。
在原来白色和米色家具的基础上,利用灰色的,将房间的颜色逐步过度统一。
温馨、时尚。
利用墙体的凹处,处理为收纳空间。
素雅,稳重。
在白色的主色调上浓淡相宜,搭配多种颜色以营造协调一致的整体感。
整面墙的超大收纳空间让家井井有条。
山东省-日照市
设计经验7 作品3
  • 现代
  • 中式
  • 欧式
  • 硬装设计
  • 软装配饰设计
  • 产品陪购
  • 施工监督

免费申请设计

设计师上门服务全程免费,禁止以任何形式收取费用。

请输入验证码

验证码输入错误