案例介绍
安徽省 - 亳州市 - 谯城区
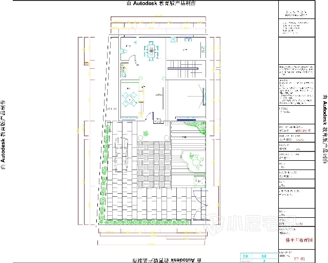
汤王别墅
户型图









免费申请设计
设计师上门服务全程免费,禁止以任何形式收取费用。