德国工业4.0智造

  • 健康环保
  • 免费服务
  • 三年质保
  • 本地体验
首页 > 案例中心 > 地中海 > 蓝海阳光

蓝海阳光 7045

88㎡#两室两厅一卫#地中海

案例介绍
北京市 - 通州区 首开华润 花香四季

设计源于生活

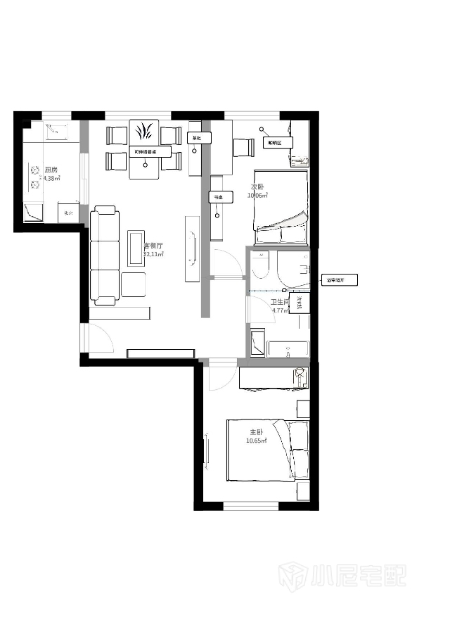
户型图

客厅

                               
卧室

                               

                               

                               

                               

                               
705
北京市-通州区
设计经验6 作品1
  • 现代
  • 日式
  • 混搭
  • 硬装设计
  • 软装配饰设计
  • 产品陪购
  • 施工监督

免费申请设计

设计师上门服务全程免费,禁止以任何形式收取费用。

请输入验证码

验证码输入错误