案例介绍
河北省 - 保定市 - 高阳县
太和风景
业主是一位中年男士,所选风格为古典中式,所有家具想要纯实木定制
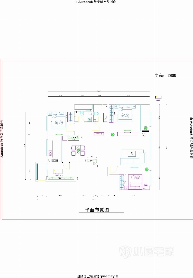
户型图

门厅处用吊顶将走廊和客厅区别

客厅做了个沙发背景墙,比传统的挂画更丰富

餐厅在侧面墙上则采用了挂画

卧室简单做了吊顶

窗帘采用淡绿色,融和中式木色

主卫生间也采用这种木色

厨房留下窗户,即通透又明亮

书房定制实木博古架,古典式的书桌
免费申请设计
设计师上门服务全程免费,禁止以任何形式收取费用。