德国工业4.0智造

  • 健康环保
  • 免费服务
  • 三年质保
  • 本地体验
首页 > 案例中心 > 简约 > 迷你幸福

迷你幸福 4301

87㎡#两室两厅一卫#简约

案例介绍
山东省 - 德州市 - 德城区 唐人中心

业主作为一名女性杂志的编辑,对于生活的要求就像是她的文字一样,细腻柔软而清新,里面点点滴滴都心意满满。

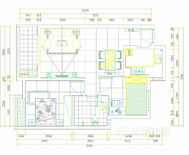
户型图

落地窗户带来和风暖阳的肆意享受。
圆润的线条,简约的造型,漂亮而又实用。
墙面的照片墙装饰意境深远,让空间不单调
统一让原本淡雅的空间不会因为过多的不同而突兀
墙面上没有大笔的装饰,偶尔像这样一幅装饰画,尽享清秀的室内环境。
在餐厅里装饰些茂盛的小花或是绿植,净化空气又能提升美感。
纯净的颜色带给卧室素雅的格调。
花色装饰让洁净了空间里充满活力,地毯的使用和床铺棉花糖般的柔软在私密空间里的布置让人感受到满满的呵护。

                               
2643
山东省-德州市
设计经验2 作品6
  • 中式
  • 田园
  • 硬装设计
  • 产品陪购
  • 施工监督

免费申请设计

设计师上门服务全程免费,禁止以任何形式收取费用。

请输入验证码

验证码输入错误