德国工业4.0智造

  • 健康环保
  • 免费服务
  • 三年质保
  • 本地体验
首页 > 案例中心 > 现代 > 百变空间

百变空间 10842

30.8㎡#一室一厅一卫#现代

案例介绍
浙江省 - 绍兴市 - 诸暨市 诸暨万达广场

风格定位:
主题:百变空间-男女时代
颜色:白色
硬装:白色烤漆饰面板,西班牙米黄石材,拉丝不锈钢。仿西西里灰石材瓷砖。
人物描述: 男主:汽车品牌营销,美国留学归来,喜欢摄影。

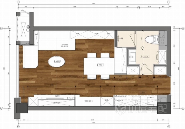
户型图

门厅干净整洁储物功能强大。
客厅皮质沙发,三种经典颜色搭配,彰显活力。
餐厅抽拉式餐桌满足多种客户要求。
卧室一键电动升降床,拓展屋内空间。
双卧室模式轻松搞定小户型居住问题。
卫生间简洁时尚实用
书房轻松完成各种写作、游戏的需要
厨房无拉手设计使厨房操作更安全、快捷、方便。
北京市-通州区
设计经验8 作品3
  • 现代
  • 欧式
  • 田园
  • 硬装设计

免费申请设计

设计师上门服务全程免费,禁止以任何形式收取费用。

请输入验证码

验证码输入错误